類別:美國進口閥門 ? 發布時間:1970-01-01 08:00 ? 瀏覽: 次

進口內螺紋水減壓閥
描述--
ALSO內螺紋減壓閥為直接作用可調減壓閥,采用隔膜型水力操作方式,不銹鋼閥芯、閥座及外加式波紋管感應器組成,確保壽命持久;廣泛用于清潔設備、消毒及食品加工設備、給水、消防系統或其它清水系統中。

進口內螺紋水減壓閥
原理--
1.開始時,調節螺栓處于最上端,閥門處于關閉狀態;
2.當蒸汽進來,需要設定壓力時,向下調節螺栓,壓縮彈簧和隔膜,推動頂桿打開主閥,使蒸汽通過,直到達到設定值;
3.如果下游壓力增大,作用在隔膜上的壓力也隨之增大,壓縮彈簧向上,主閥開度變小,從而維持下游壓力的穩定;
進口內螺紋水減壓閥
特點--
結構簡單,重量輕。
設計簡單,且耐久性好,易于保養與維護。
螺紋連接,安裝方便。
通過手柄調節壓力,無需工具。
閥芯、閥座均使用不銹鋼,抗磨損,耐久性好。
為保護閥體、閥座不受雜質的損害,內裝60目不銹鋼濾網。
進口內螺紋水減壓閥 零件材料--
|
零件名稱 |
材料 |
|
閥體、閥瓣 |
鋁青銅 |
|
濾網、螺母、墊片、彈簧壓蓋 |
不銹鋼 |
|
彈簧 |
60Si2Mn |
|
O形圈 |
丁腈橡膠 |
進口內螺紋水減壓閥 技術參數--
|
型號 |
200P-10T、200P-10P |
200P-16T、200P-16P |
|
公稱壓力PN(MPa) |
1.0 |
1.6 |
|
閥體試驗壓力(MPa) |
1.5 |
2.4 |
|
閥座試驗壓力(MPa) |
1.1 |
1.76 |
|
最高流量(M/s) |
6 |
|
|
減壓范圍 |
≤0.7MPa |
|
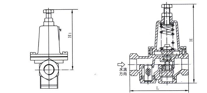
進口內螺紋水減壓閥 外形尺寸--

|
公稱通徑 DN(mm) |
尺寸(mm) |
||
|
L |
H |
H1 |
|
|
15 |
112 |
170 |
130 |
|
20 |
112 |
183 |
130 |
|
25 |
135 |
189 |
143 |
|
32 |
165 |
242 |
195 |
|
40 |
192 |
273 |
222 |
|
50 |
231 |
307 |
252 |


